
Lodge & Stay
暁AKATSUKI
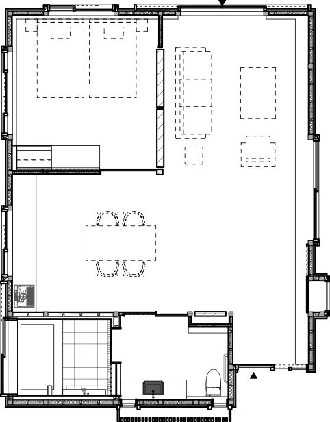
伝統的な平面形式である四間取りの構成を採用し、
周囲の大小の外部空間を取り込んだ連続した土間空間とした。
随所に設けた引戸形式の内部建具を開閉することで、
全居室に柔らかい光と風が室内を満たす。
小さな水回りを設け、まちで収集した陶磁器に
とれたての野菜や特産品を並べて楽しめる。
浴室は視線を低く抑えた空間とすることで
落ち着いて湯を楽しむ空間とした。
ご宿泊について
2名様限定
1泊2食・飲物込
- 車いす対応可
- チェックイン 15時~
- チェックアウト ~11時
- 全室禁煙となっています。
- 22時〜7時半の間はスタッフが常駐しておりませんので予めご了承ください。

設備
洗面・バスルーム・ウオッシュレット・冷蔵庫・電気ポット・TV
アメニティ
歯磨きセット・ボディーソープ・シャンプー・コンディショナー・フェイスタオル・バスタオル・バスローブ・スリッパ・パジャマ・ドライヤー



