
Lodge & Stay
曙AKEBONO
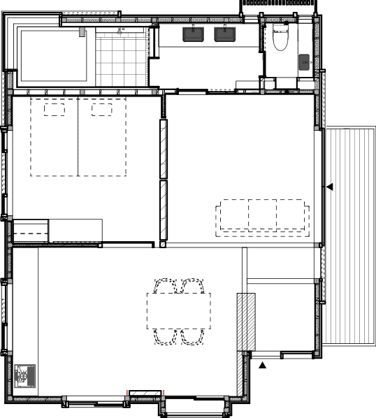
伝統的な平面形式である四間取りの構成を採用し、
周囲の大小の外部空間を取り込んだ空間とした。
床は板張りであり、外部に続くウッドデッキを介して
外部との視線の高さの変化も楽しめる。
随所に設けた引戸形式の内部建具を開閉することで、
全居室に柔らかい光と風が室内を満たす。
小さな水回りを設けたことで、
まちで収集した陶磁器にとれたての野菜や特産品を並べて楽しめる。
浴室は上部に開いた空間とすることで
開放感のある露天の楽しさを味わえる湯の空間とした。
ご宿泊について
2名様限定
1泊2食・飲物込
- チェックイン 15時~
- チェックアウト ~11時
- 全室禁煙となっています。
- 22時〜7時半の間はスタッフが常駐しておりませんので予めご了承ください。

設備
洗面・バスルーム・ウオッシュレット・冷蔵庫・電気ポット・TV
アメニティ
歯磨きセット・ボディーソープ・シャンプー・コンディショナー・フェイスタオル・バスタオル・バスローブ・スリッパ・パジャマ・ドライヤー



