
Lodge & Stay
天宮TENKYU
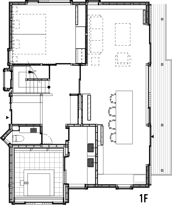
視線の抜ける東側の外部空間へ向けて開いた平面構成とし、
中央の吹き抜けを介して居室が立体的に連続する。
東側には谷地に並ぶ窯元や作家の煙突群を臨むことができ
有田らしい風景を楽しめる。
随所に設けた引戸形式の内部建具を開閉することで、
全居室に柔らかい光と風が室内を満たす。
また家具の一部には古い欄間を活用した。
小さな水回りを設けたことで、
まちで収集した陶磁器にとれたての野菜や特産品を並べて楽しめる。
浴室は上部に開いた空間とすることで
開放感のある露天の楽しさを味わえる湯の空間とした。
ご宿泊について
2名様~4名様
1泊2食・飲物込
- チェックイン 15時~
- チェックアウト ~11時
- 全室禁煙となっています。
- 22時〜7時半の間はスタッフが常駐しておりませんので予めご了承ください。


設備
洗面・バスルーム・ウオッシュレット・冷蔵庫・電気ポット・TV
アメニティ
歯磨きセット・ボディーソープ・シャンプー・コンディショナー・フェイスタオル・バスタオル・バスローブ・スリッパ・パジャマ・ドライヤー






